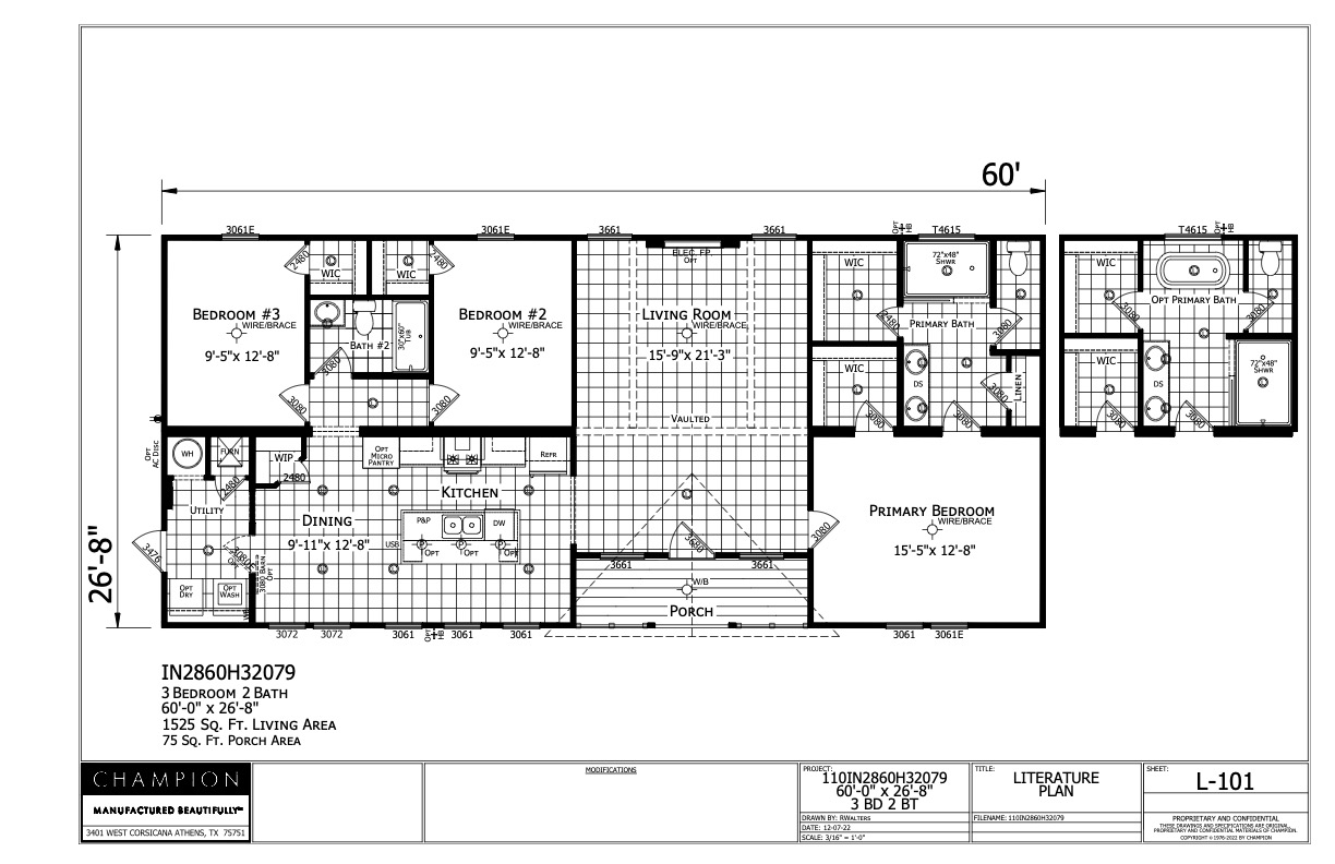
IN2860H3 (3BR 2BA)
3 beds
2 baths
1525 sq ft
60' x 27'
Contact Us For Pricing
Request Info
×
Floor Plan
